6 locali in vendita

Pieve Di Soligo, Via Artemisia Gentileschi
€ 204.000
Prezzo aggiornato
6 locali 6 locali
106 Mq 106 Mq
2 bagni 2 bagni

6 locali in vendita

Pieve Di Soligo, Via Artemisia Gentileschi

Descrizione annuncio

PIEVE DI SOLIGO//

BARBISANO!

In palazzina di sole quattro unità proponiamo in vendita appartamento ristrutturato completamente nel 2025/26 con riscaldamento autonomo.

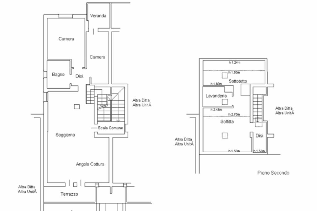
L'immobile si trova al primo piano senza ascensore, la zona giorno open space è servita da un terrazzo abitabile ed è pronta per essere arredata.

La zona notte consta di due camere; singola con veranda, matrimoniale e il bagno finestrato con doccia.

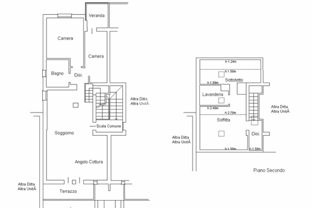
proseguendo la scale interna porta la piano superiore mansardato dove si mostra un secondo bagno con doccia e due stanze utilizzabili a piacimento.

L'appartamento è stato ristrutturato completamente; comprendendo impianto elettrico, idraulico e la caldaia. Sono stati sostituiti gli infissi, i termosifoni ed è stato inserito l'impiano fotovoltaico con 34Kwatt e l'isolamento interno.

L'immobile si conclude con il posto auto coperto e la cantina.

Per ulteriori informazioni contattateci in agenzia e seguiteci anche su Facebook, cliccando “mi piace” sulla pagina “Agenzia Tecnocasa Pieve di Soligo”.

Scaricate gratuitamente l’app Tecnocasa sul vostro smartphone e restate sempre aggiornati sulle nostre proposte di vendita.

Mostra tutto

Nelle vicinanze

Trasporto pubblico Trasporto pubblico
Trasporto pubblico
520 m
Ricariche auto elettriche Ricariche auto elettriche
Supermercato Famila Pieve Di Soligo | BeCharge
1,1 Km
Bennet - Pieve di Soligo | BeCharge
1,5 Km
De Vido Abbigliamento | EnelX
1,9 Km
Scuole Scuole
Scuole
580 m
Balbi Valier
640 m
Scuola Materna "Monumento ai Caduti"
1,9 Km
Scuola Elementare "Papa Luciani"
2,0 Km
Scuola Primaria Statale Giovanni Ancillotto
2,5 Km
Farmacia Farmacia
Farmacia Schiratti
520 m
Farmacia Solighetto
1,3 Km
Ospedali Ospedali
Ospedali
320 m
Supermercati Supermercati
In's
1,0 Km
Famila
1,1 Km
Supermercati
1,1 Km
IN'S Mercato S.p.a.
1,5 Km
Centro Commerciale Pievigina
1,5 Km
Negozi Negozi
Faganello
1,1 Km
De Vido abbigliamento
1,8 Km
Abbigliamento Ferracin
2,9 Km
Bar Bar
Italiana caffè
500 m
La loggia
520 m
Mixer
530 m
Perbacco
570 m
Snack bar all'Angolo di Pilat Elisa
910 m
Ristoranti Ristoranti
Pizzeria Rico's 2
490 m
Enoteca ristorante Al buon vino
520 m
San Martino
530 m
Osteria Al Portego
580 m
Al Gallo
610 m
Mostra tutto

Caratteristiche

Rif.:
61189051
Piano:
1 di 1 (Piano su più livelli)
Posti auto:
1
Terrazzi:
2
Camere da letto:
2
Arredamento:
Assente
Mostra tutto
Prezzo Prezzo
€ 204.000
Rata mutuo Rata mutuo
€ 969 / mese
Spese annue Spese annue
€ 100
Proponi il tuo prezzoProponi il tuo prezzo

Classe Energetica

D
D
D
D
D
D
D
D
D
EP globale non rinnovabile:
217.62 kW h/m² anno
EP globale rinnovabile:
0.50 kW h/m² anno
EP invernale del fabbricato:
EP estiva del fabbricato:
Anno di costruzione:
1986
Riscaldamento:
Autonomo
Tipo impianto:
A radiatori
Tipo alimentazione:
Metano

Prezzo ridotto di €1 (3%%)

Ti interessa visionare l'immobile?

Fissa un appuntamento  Fissa un appuntamento

Richiedi informazioni

Clicca su Leggi per aprire l'informativa
* Questi campi sono obbligatori

Calcola il tuo mutuo

Semplice e senza impegno
Anticipo

( % )
Mutuo

( % )

pochi semplici passi

inserisci i tuoi dati
Questionario completato
Grazie per aver richiesto un appuntamento senza impegno con un nostro Consulente del Credito e Assicurativo.

Hai inserito correttamente tutti i dati necessari e a breve riceverai una e-mail con un link da convalidare per inviare i tuoi dati.
Affiliato
Studio Pieve Srl
P.zza Vittorio Emanuele II, 28 31053 Pieve Di Soligo (TV)
P.zza Vittorio Emanuele II, 28 31053 Pieve Di Soligo (TV)
Zona: Pieve di Soligo
Mostra su mappa
Affiliato
Studio Pieve Srl
P.zza Vittorio Emanuele II, 28 31053 Pieve Di Soligo (TV)

2026 Tecnocasa Franchising S.p.A. - P. IVA 08365160152 - Via Monte Bianco 60/A 20089 Rozzano (MI). Ogni agenzia ha un proprio titolare ed è autonoma. Privacy policy | Policy utilizzo | Cookie policy