Casa semindipendente in affitto

Pieve Di Soligo, Via Guglielmo Marconi
€ 800 / mese
Prezzo aggiornato
4 locali 4 locali
165 Mq 165 Mq
1 bagno 1 bagno

Casa semindipendente in affitto

Pieve Di Soligo, Via Guglielmo Marconi

Descrizione annuncio

PIEVE DI SOLIGO – CENTRO STORICO!

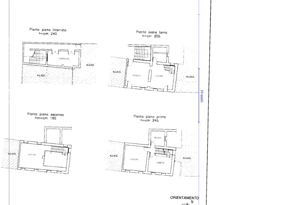
Proponiamo in locazione una casa semi-indipendente disposta su tre livelli, situata in pieno centro a Pieve di Soligo, comoda a tutti i principali servizi. L’immobile, costruito nei primi anni 2000, è attualmente in fase di ristrutturazione e sarà disponibile a partire dal mese di febbraio.

Al piano terra l’abitazione si sviluppa con una cucina separata, un accogliente soggiorno e una stanza versatile, il primo piano ospita un bagno finestrato completo di box doccia, una camera da letto e un’ulteriore stanza, ideale come seconda camera o area hobby. All’ultimo livello si trova una mansarda che offre uno spazio aggiuntivo da personalizzare secondo le proprie esigenze.

La casa è dotata di riscaldamento autonomo sia a pavimento che tramite radiatori, oltre a impianto di condizionamento autonomo, garantendo comfort in ogni stagione. Completa la proprietà un giardino privato, perfetto per momenti di relax all’aperto.

Soluzione ideale per chi cerca un’abitazione moderna e ben posizionata, nel cuore di una delle zone più richieste di Pieve di Soligo.

Per ulteriori informazioni contattateci in agenzia e seguiteci anche su Facebook, cliccando 'mi piace' sulla pagina 'Agenzia Tecnocasa Pieve di Soligo'

Scaricate gratuitamente l'app Tecnocasa sul vostro smartphone e sarete sempre aggiornati sulle nostre proposte di vendita.

Mostra tutto

Nelle vicinanze

Ricariche auto elettriche Ricariche auto elettriche
Supermercato Famila Pieve Di Soligo | BeCharge
930 m
Bennet - Pieve di Soligo | BeCharge
1,5 Km
De Vido Abbigliamento | EnelX
1,7 Km
Scuole Scuole
Scuole
400 m
Scuola Elementare "Papa Luciani"
1,8 Km
Scuola Primaria Statale Giovanni Ancillotto
2,3 Km
Farmacia Farmacia
Farmacia Schiratti
340 m
Farmacia Solighetto
1,1 Km
Supermercati Supermercati
In's
950 m
Famila
960 m
IN'S Mercato S.p.a.
1,3 Km
Maxì
1,4 Km
Centro Commerciale Pievigina
1,6 Km
Negozi Negozi
De Vido abbigliamento
1,6 Km
Bar Bar
Italiana caffè
330 m
La loggia
340 m
Perbacco
410 m
Mixer
410 m
La delizia
880 m
Ristoranti Ristoranti
Enoteca ristorante Al buon vino
330 m
San Martino
330 m
Osteria Al Portego
440 m
Al Gallo
450 m
Pizzeria La Terrazza di Padoin Silvio
940 m
Mostra tutto

Caratteristiche

Rif.:
61157439
Piano:
3 di 3 (Piano su più livelli)
Posti auto:
1
Camere da letto:
2
Arredamento:
Completo
Condizionamento:
Autonomo
Mostra tutto
Prezzo Prezzo
€ 800 / mese
Spese annue Spese annue
€ 0

Classe Energetica

G
G
G
G
G
G
G
G
G
EP globale non rinnovabile:
9154.00 kW h/m² anno
Anno di costruzione:
2000
Riscaldamento:
Autonomo
Tipo impianto:
A pavimento
Tipo alimentazione:
Metano

Prezzo ridotto di €1 (12%%)

Ti interessa visionare l'immobile?

Fissa un appuntamento  Fissa un appuntamento

Richiedi informazioni

Clicca su Leggi per aprire l'informativa
* Questi campi sono obbligatori
Affiliato
Studio Pieve Srl
P.zza Vittorio Emanuele II, 28 31053 Pieve Di Soligo (TV)
P.zza Vittorio Emanuele II, 28 31053 Pieve Di Soligo (TV)
Zona: Pieve di Soligo
Mostra su mappa
Affiliato
Studio Pieve Srl
P.zza Vittorio Emanuele II, 28 31053 Pieve Di Soligo (TV)

2026 Tecnocasa Franchising S.p.A. - P. IVA 08365160152 - Via Monte Bianco 60/A 20089 Rozzano (MI). Ogni agenzia ha un proprio titolare ed è autonoma. Privacy policy | Policy utilizzo | Cookie policy